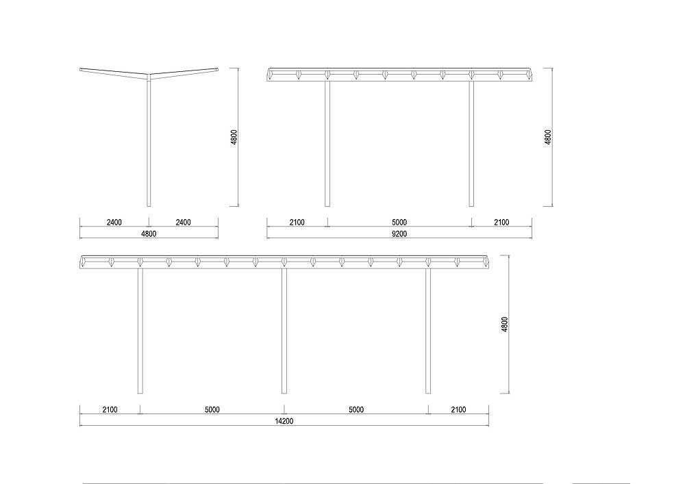
X-ZS04Modulové zastřešení nástupiště
| X-ZS04a | zastřešení se dvěma sloupy - délka 9200 mm |
| X-ZS04b | zastřešení se třemi sloupy - délka 14200 mm |
| X-ZS04c | zastřešení se čtyřmi sloupy - délka 19200 mm |
Modulové zastřešení X-ZS04 je dostupné jako modulová řada 9200, 14200 a 19200 mm dlouhá. Tvoří jej ocelové nosné sloupy obdélného průřezu, spojovací profil a střecha s nosníky trojúhelníkového průřezu svařených z ocelových plechů. Výplň je možná ve variantách: lepené bezpečnostní sklo, deskový polykarbonát v různých odstínech, hliníkový sendvič, nebo kombinace těchto materiálů.
Všechny části jsou pokryty polyesterovým práškem. Sloupy jsou k podkladu připevněny pomocí kotevních profilů zapuštěných v betonovém základu.
Míry: výška 4800 mm, šířka 4800 mm

































