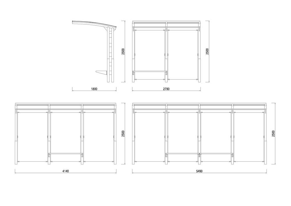
E-ZS01Zastávka bez bočnic
| E-ZS01a | zastávka se dvěma polemi - délka 2790 mm |
| E-ZS01b | zastávka se třemi polemi - délka 4140 mm |
| E-ZS01c | zastávka se čtyřmi polemi - délka 5490 mm |
Zastávka E-ZS01 je dostupná jako modulová řada 2790, 4140 a 5490 mm dlouhá. Je vyrobena z nosných sloupů svařených z dvojice hliníkových trubek a plechu. Na přechodový plech je navařena hliníková trubka skružená do mírného oblouku, která nese zasklívací profily z vytlačovaného hliníku.
Zastřešení z průhledné či kouřově zbarvené polykarbonátové desky, variantně z jiného materiálu dle objednávky zákazníka. Stěny zastávky mají výplň z bezpečnostního tvrzeného skla. Rámy lavičky jsou připevněny ke sloupům zastávky nýtovacími maticemi.
Sloupy z hliníkových trubek jsou k podkladu připevněny vhodnými šrouby nebo jsou použity kotevní profily zapuštěné v betonovém základu.
Všechny hliníkové části jsou pokryty polyesterovým práškem.
Míry: výška 2500 mm, šířka 1800 mm.





































